
Voor de nieuwe woningbouwprojecten in Louerveld in Susteren en in Nieuwstadt zijn door de gemeente de officiële straatnamen vastgesteld. Met deze keuze kunnen de toekomstige woningen worden geregistreerd in de Basisregistratie Adressen en Gebouwen. De bekendmaking is gepubliceerd op 8 december en maakt deel uit van de voorbereiding op de bouw van beide locaties.
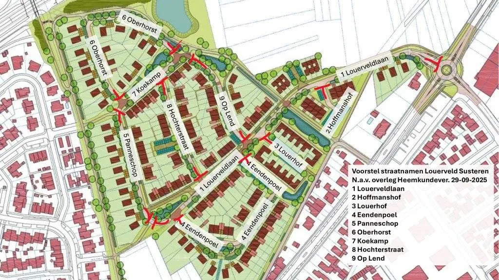
In Susteren krijgen de nieuwe straten namen die verwijzen naar het gebied en zijn omgeving. Het gaat onder meer om Louerveldlaan, Hoffmanshof, Louerhof, Eendenpoel, Panneschop, Oberhorst, Koekamp, Hochterstraat en Op Lend. Het project in Nieuwstadt krijgt één nieuwe straatnaam: Elsenehof.
De plannen worden op 11 december gepubliceerd via overheid.nl. Vanaf dat moment liggen ze zes weken ter inzage, tot en met 22 januari 2026. Inwoners die een bezwaar willen indienen tegen het besluit, kunnen dit gedurende deze periode schriftelijk doen. Op de website van de gemeente staat meer informatie over de bezwaarprocedure.
Voor vragen of opmerkingen is de gemeente bereikbaar via Nieuwe Markt 55 in Echt, telefonisch via 0475-478 478 of per mail via [email protected].